Store&SpaceDesign・Interior Design・FUKUOKA

ハラダケージデザイン室 /KEIJI HARADA DESIGN OFFICE/

 

HOME | PROJECT
   

0l4a2057.jpg 3d1g1294.jpg img_4360.jpg img_6716.jpg img_0699.jpg 26.jpg img_6773.jpg img20200216223952255002.jpg 0l4a3260-1.jpg img528.jpg

PROJECT

  客室パース1 ホテルベットルームパース 客室平面図
 

リゾートホテル
客室改修
 
スペシャルルームのリニューアル計画である。
落着きある上質な空間の提案である。

  エントランスホールのパース レセプションホール模型 エントランスホールの模型 長いテーブル
 

企業レセプションホール
リボーンプロジェクト
 
伝統ある生産系企業が創立100周年を迎えるにあたり、本社社屋の顔である
エントランスホールの再構築計画である。
「再生と革新」をテーマに、企業の未来を見据えたプロジェクトである。

  建築模型1 建築模型2 コンセプトマップ
 

新駅ビルテナント
新築計画
 
新設する駅ビルテナントとして入店する、SM店舗の計画である。
核テナントとして、新しく動き始めるムービングシティと
デザインテーマを掲げた。

  波止場 波止場の計画 ターミナルの照明計画
 

国際線船舶旅客ターミナル広場
リニューアルプロジェクト
 
国際線船舶旅客ターミナルの屋上ホールのリニューアル計画である。
絶景スポットを活かし、多様なイベント開催に向けた活性化計画である。

  木の壁面 福利厚生施設平面図 福利厚生施設模型
 

金融系企業福利厚生施設
新築計画プロジェクト
 
社員福利厚生施設としての図書館と、地域住民に向けた企業歴史館の
計画プロジェクトである。
地域コミュニティの場と、社員福利厚生の充実を備えた施設計画である。

  大きな風船 フードコート フードコートパース img20200620103636794244.jpg
 

ショッピングセンターフードコート
新設計画プロジェクト
 
大型商業施設に計画された、フードコートの新設計画である。
ファミリー層をメインとした配置計画と、自然と遊びをテーマとした
環境デザインの提案である。

  藁葺き屋根店舗 米俵 平面図
 

焼菓子店
コンセプトショップの提案
 
長年地域に親しまれている、焼菓子専門店コンセプトショップの計画である。
商品陳列から販売手法まで、これまでと違った店づくりの提案である。

  レジデンス模型1 レジデンス模型2 レジデンス模型3
 

企業研修所
建築デザイン計画
 
企業福利厚生施設を兼ねた、研修施設新築計画である。
新しい研修施設のあり方など含めた、建築意匠提案である。

  プレイスペース模型 キッズプレイランド 子供プレイスペース
 

大規模ショッピングセンターにおける
オープンスペースの提案
 
郊外型SCにおける、屋外型オープンスペースの活用計画である。
ファミリー層を軸に、多目的スペースのデザインプラン提案である。

  SAパース SA内装パース SA内装パース
 

高速道路SA施設 エコエリア
新設計画
 
高速道路サービスエリア内商業施設の新設計画である。
従来のサービスエリア運営と異なり、「エコエリア」といった
新コンセプトに伴う建築意匠及び空間デザインの提案である。

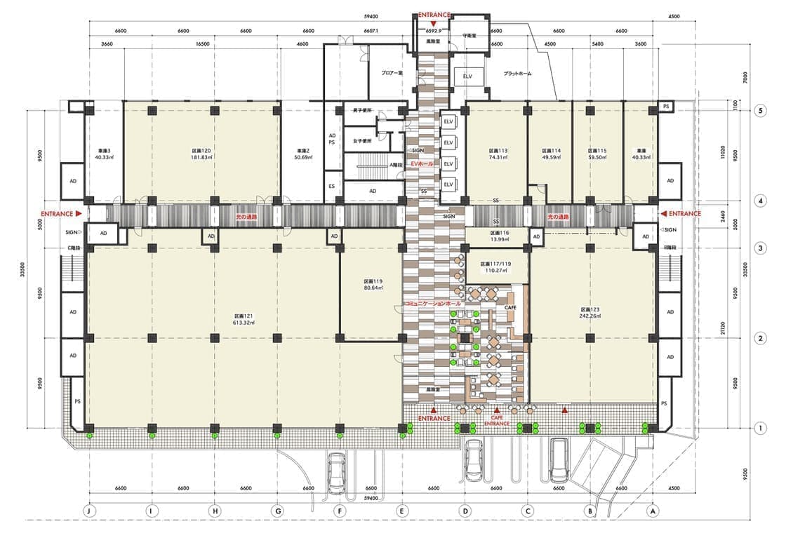
  エントランスパース 平面図
 

物流施設
活性化計画
 
老朽化された大型物流施設の再生計画である。
1Fフロア及びホール全体の環境デザインの再構築を行い、
施設価値の向上とテナント誘致にむけたプロジェクトである。

  ホテル模型 ホテル内装模型 ホテル平面図
 

長崎県西海市 ホテル再生計画
 
老朽化した観光ホテルの再生プロジェクトである。
絶景の岬に建つ360°オーシャンビューのロケーションを意識した、スペシャルティホテルとしての再生を目指すプロジェクトである。

  建築模型 建築立面
 

専門店建築意匠計画
 
1階部分を商業店舗、2階部分をコミニュティサロンとした
商業ビルの新築計画である。